聯系我們
18903178757
- 地址:
- 河北省泊頭市富鎮開發區
- 傳真:
- 0317-8041117
- Q Q:
- 28505225
旁插扁袋式除塵器
(1)結構特點
PBC型旁插扁袋式除塵器是采用上進風、下排風、順流外濾式、反吸風清灰方式,如 圖6-13所示D適用于120t:以下的含塵氣體場合^ PBC型旁插扁袋式除塵器的結構特點是采用扁袋式旁插安裝,在相同的箱體容積內, 安排更多的過濾面積^同時,可以根據處理不同風量的需要,以相同的過濾單元結構,組成不同規格的組合形式D另一特點是清灰采用大氣反吸風結構, 借助除塵器的負壓運行,當清灰時*反復啟 閉反吸風閥,使濾袋重復吸癟和鼓脹,以抖 落濾袋外表面的粉塵,達到清灰目的。

(2)組合式旁插扁袋式除塵器
①PBC型組合式旁插扁袋式除塵器 PBC型組合式旁插扁袋式除塵器的系列有單 元數為2?I2共11個組合式規格,其技術性 能見表6-22。壓力損失約800?1200Pa,入 口粉塵濃度小于30g/m3 ,除塵效率大 于 99.5%。
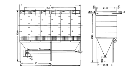
②LYC型旁插脈沖噴吹扁袋式除塵器 LYC型旁插脈沖噴吹扁袋式除塵器是模塊式 定型產品,在噴吹每個濾袋時其噴吹直徑和 數量,以及脈沖閥的選型都是固定的。其技 術參數見表6-23,外形尺寸見圖6-14和 表 6-24,


注,1.上述風童以過濾風速為1. 5?2. Om/miti的汁算值,實際風速應按不同的工況設計選擇。 2.清灰所:氣源為400?SOOkPa,每閥每次耗氣里約為0.05m

圖6-14 LYC型旁插脈沖噴吹扁袋式除塵器
表6~24 LYC型旁插脈沖噴吹扁袋式除塵醫外形尺寸



